Interior Design with Ste Marie Design Group

Responsibilities

2023

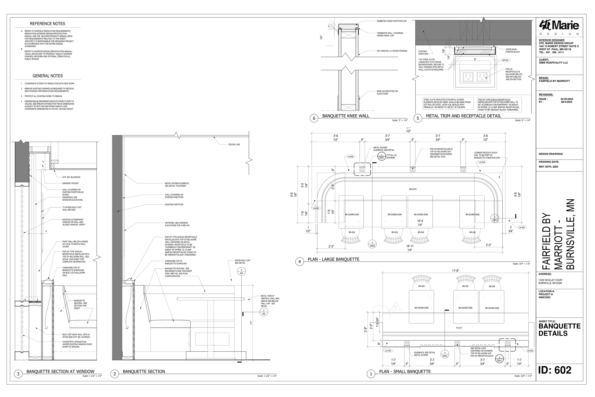
Translate client design vision into a producible and affordable product
Draft detailed drawings for construction, including FF&E/Finish plans, elevations, and millwork, using AutoCAD and Revit
Produce near realistic exterior and interior renders of concepts for client presentation

Previous
Previous

RC Smith Co

Next
Next

JPConnelly